OSIEDLE MŁODA BIAŁOŁĘKA, Geodezyjna

52.3099603,21.0732003

Geodezyjna

Warszawa
Basic information
Price (PLN/EUR) m2
14 500,00 PLN   (3 379,56 EUR)
Price (PLN/EUR)
380 770,00 PLN   (88 747,23 EUR)
Voivodeship
mazowieckie
District
Białołęka
Area
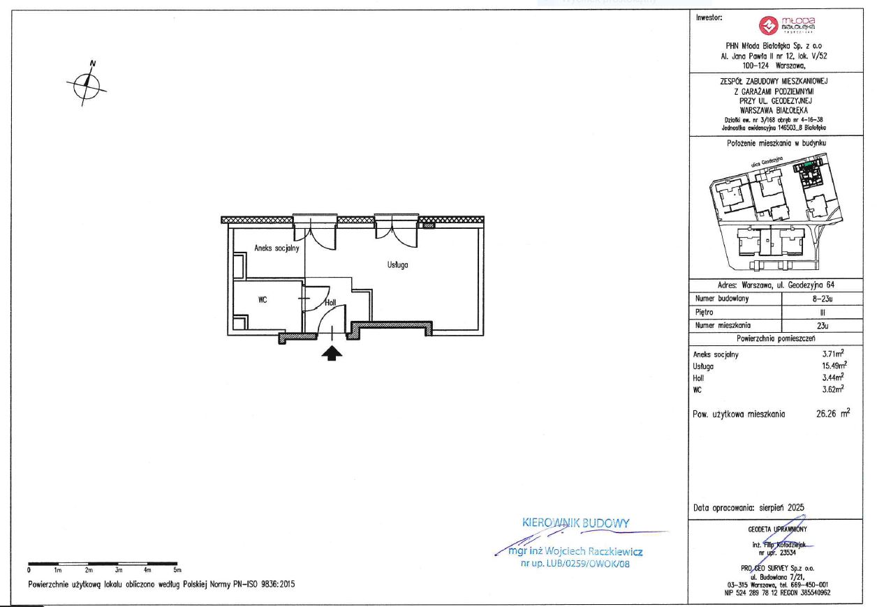
26,26 m2
Transaction type
Sale
Type of property
Lokal handlowy
Contact :  Dawid Jasiński
609698888
Description

Wyjątkowa okazja inwestycyjna w sercu Młodej Białołęki

Drugi etap Osiedla Młoda Białołęka oferuje gotowe lokale usługowe o doskonałym potencjalne inwestycyjnym. Elastyczne przestrzenie, o metrażach od 26 do 32 m², są doskonale zaprojektowane, aby sprostać oczekiwaniom najbardziej wymagających inwestorów, poszukujących efektywnej i bezpiecznej lokaty kapitału. Kluczowym atutem naszej oferty jest optymalny rozmiar lokali, który gwarantuje wysoki stopień elastyczności zarówno pod kątem wynajmu, jak i łatwości w zarządzaniu portfelem nieruchomości. Lokale o potencjale inwestycyjnym zapewniają jednocześnie możliwość odzyskania podatku VAT, co stanowi istotny argument dla inwestorów zainteresowanych optymalizacją podatkową.

Młoda Białołęka to odpowiedź na potrzeby inwestorów poszukujących miejsc, które będą generować stały dochód pasywny oraz oferować potencjał wzrostu wartości w przyszłości. Decydując się na zakup lokalu w naszej inwestycji, wybierasz stabilność finansową i bezpieczeństwo inwestycji oparte na solidnych fundamentach rynkowych.

Prezentowany lokal to przestronna i ustawna powierzchnia o metrażu 26,26 mkw. z aneksem socjalnym i WC (numer lokalu 23U). Zakup bezpośrednio od dewelopera – Grupy Kapitałowej Polskiego Holdingu Nieruchomości.

LOKALIZACJA

Osiedle zlokalizowane jest na warszawskiej Białołęce, jednej z największych i prężniej rozwijających się dzielnic Warszawy. Łatwy dostęp do trasy S8, łączącą dwie strony miasta i umożliwiającą szybki dojazd do centrum.

CHARAKTERYSTYKA OSIEDLA

W ramach drugiego etapu Osiedla Młoda Białołęka, oferujemy lokale mieszkalne i usługowe, zlokalizowane w siedmiu nowoczesnych, pięciokondygnacyjnych budynkach. Starannie zaprojektowane metraże odpowiadają zróżnicowanym potrzebom. Dla zmotoryzowanych przewidzieliśmy komfortowy parking w podziemnej hali garażowej, w której znalazło się również miejsce na komórki lokatorskie, jako dodatkowa przestrzeń do przechowywania. Dodatkowo w projekcie uwzględniliśmy miejsca postojowe naziemne.

WYJĄTKOWA CHARAKTERYSTYKA LOKALI

-wyjątkowo przestronne lokale z wysokością pomieszczeń do 2,94 m.

-bardzo duże okna

-mega przestrzenne klatki schodowe

-pięknie zagospodarowane patio

UDOGODNIENIA KLUCZEM DO KOMFORTU

Nasza inwestycja idzie dalej niż typowa oferta mieszkaniowa. Myśląc o wspólnym dobru i wygodzie mieszkańców, udostępniamy liczne udogodnienia. Części wspólne z placem zabaw stwarzają idealne warunki do rodzinnej integracji i aktywności na świeżym powietrzu i dla dorosłych i dla dzieci. Bogata zieleń w starannie przemyślany sposób wpleciona w plan osiedla stanowi oazę spokoju, umożliwiającą chwilę wytchnienia po dniu pełnym wyzwań.

JAKOŚĆ I FUNKCJONALNOŚĆ

To, co wyróżnia naszą inwestycję, to przemyślana architektura i wysoka jakość wykonania. Każdy element osiedla został zaprojektowany z myślą o harmonii, funkcjonalności oraz komforcie mieszkańców. Zintegrowane rozwiązania architektoniczne i krajobrazowe tworzą spójną i przyjazną przestrzeń, w której każdy może się poczuć jak w domu. Osiedle Młoda Białołęka to nie tylko budynek, to przestrzeń życiowa, która łączy w sobie wszystko, co najlepsze w miejskim stylu życia, jednocześnie oferując urok i spokój naturalnej scenerii.

Szczegółowe informacje na temat inwestycji oraz aktualnej oferty znajdą Państwo na stronie internetowej www.mlodabialoleka.pl Zapraszamy do kontaktu celem poznania wszelkich szczegółów i dopasowania oferty do Państwa wymagań.

Niniejsza oferta nie stanowi oferty handlowej w rozumieniu kodeksu cywilnego.

Detailed information
label
OSIEDLE MŁODA BIAŁOŁĘKA
Voivodeship
mazowieckie
City
Warszawa
District
Białołęka
Street
Geodezyjna
Primary market
yes
Number of rooms
1
Floor
3
Number of floors
5
Elevator
yes
Heating
TAK
Parking space
garaż
Year of construction
2025
Area
26.26
Total area
26.26
Ownership
własność
Destiny
handel i usługi/lokal usługowy
Intercom
yes
Heating
yes
Kitchen type
aneks
Building condition
do wykończenia
Near by
© OpenStreetMap contributors.
Access map
Go back to the offers list